HOME’S掲載中
☞ホームズの物件ページはこちら♪
所在地
大阪府東大東市御供田1丁目
交 通
JR片町線 住道 駅 徒歩12分
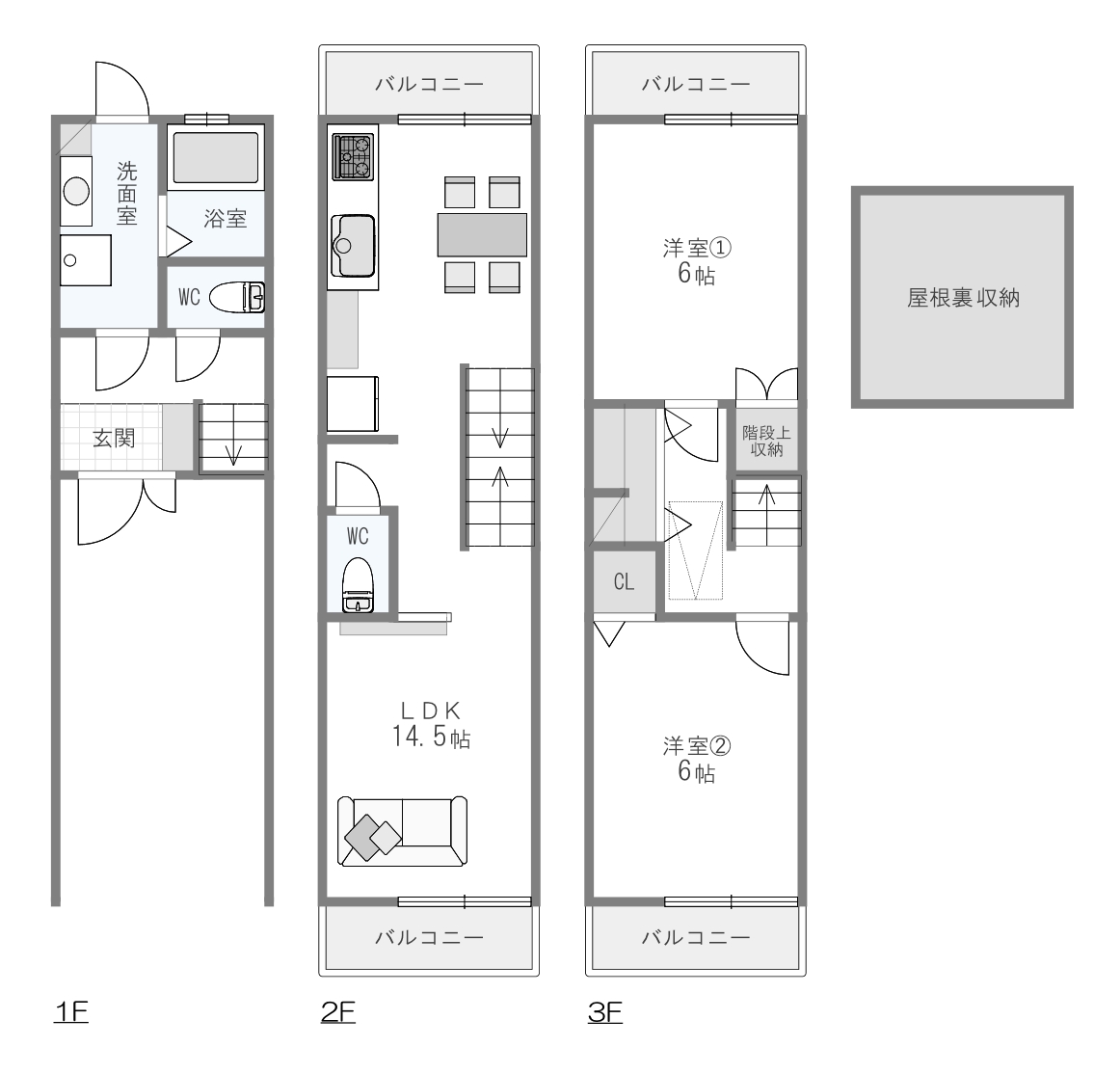
3DK
敷地面積|40.69 ㎡
延床面積|77.22 ㎡
《POINT》
・リフォームやリノベーションをお考えの方におすすめの物件です。
現状引渡しに付き、お客様好みの自由なリフォームが可能。ご要望がございましたら、リフォームのご相談もあわせて承ります。
・全室バルコニーに接した採光、風通しの良い間取り。
・最寄り駅より徒歩12分。
京橋駅までわずか2駅の利便性の高い住環境(※区間快速利用時です)。
・住宅ローン無料相談会実施中。
お客様に合ったプランをご提案。住宅ローンは当社にお任せ下さい。
玄関![]() |
洗面室![]() |
浴室![]() |
屋外スペース![]() |
システムキッチン![]() |
DK![]() |
和室(1)![]() |
和室(2)![]() |
洋室![]() |
洋室![]() |
バルコニー![]() |
外観![]() |
外観![]() |
前面道路![]() |
リフォームプラン(参考)![]() |
・3DK→2LDKに間取り変更。 ・2階リビングを拡張しゆとりある居住空間に。 |
※現状と相違のある場合は、現状を優先させていただきます。
※住宅ローンは一定要件該当者が対象です。適用される金利は融資実行時のものとなり、表記されている金利・返済額と異なる場合がございます。














-1.jpg)














-400x400.jpg)
